Sector Profile

Site Planning

Feasibility & Land Use Optimization

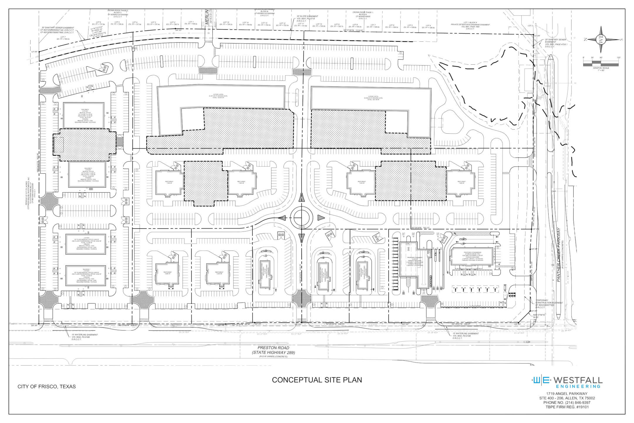
Effective site planning is the foundation of every successful development. We provide comprehensive feasibility studies, conceptual layouts, and land use analysis to help developers visualize potential and maximize value. Our approach balances regulatory constraints with design aspirations, ensuring that every square foot is utilized efficiently while maintaining aesthetic and functional integrity.

Site Planning Project Image Site Planning Project Image Site Planning Project Image